GALPÃO + TERRENO ANEXO - 1.800,00 m²- VARGEM GRANDE PAULISTA\SP Jardim Sao Marcos, Vargem Grande Paulista-SP

Isabel Chiarelli
Corretor de Imóveis CRECI: 265080F

Cômodos e espaços

3 Banheiros
Mais comodidade e higiene para todos

Dimensões e metragens

505,00 m² área construída
É a soma da área total de todos os pavimentos
1.800,00 m² área total
Área total do terreno onde o imóvel está localizado

Confira mais detalhes sobre este Galpão

Imóvel com excelente potencial de investimento, localizado em Zona de Uso Misto (ZUM), o imóvel é constituído por dois lotes interligados, com matrículas independentes, o que amplia significativamente as possibilidades de uso, expansão ou incorporação.

Trata-se de um imóvel de esquina, com duas entradas totalmente independentes, sendo uma voltada para a avenida principal, que dá acesso direto ao galpão, e outra localizada na rua transversal, atendendo ao lote anexo. Essa configuração garante ótima logística, circulação facilitada e maior versatilidade operacional.

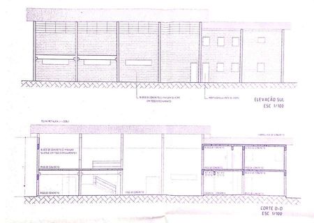
O galpão ocupa um terreno de 800 m² e possui área construída total de aproximadamente 330 m². No pavimento térreo, com cerca de 230 m², encontra-se a área fabril com pé-direito útil de 6,5 metros e cumeeira atingindo 8,5 metros, portão de carga com 4,4 metros de altura, além de dois banheiros, vestiário, refeitório e escritório. O pavimento superior conta com cerca de 100 m² em mezanino, também destinado a escritório e refeitório, oferecendo apoio administrativo adequado às atividades industriais ou logísticas.

A construção apresenta sistema estrutural em estacas tipo Strauss, fechamento em blocos de concreto estrutural impermeabilizados e pintura adequada, cobertura em telha metálica com pintura reflexiva, energia trifásica de 20 KVA, abastecimento de água pela Sabesp e sistema de esgoto por fossa com filtro e sumidouro.

Há ainda uma edificação anexa com aproximadamente 100 m² de área construída, distribuída em dois pavimentos. No térreo, encontram-se cozinha, área de serviço, depósito, sala e lavabo. No pavimento superior, duas salas e um banheiro completam o espaço, ideal para uso administrativo, apoio operacional ou até mesmo residencial, conforme a necessidade.

Complementando o conjunto, o lote anexo possui 1.000 m² de área total, é plano, gramado, de esquina e conta com portão para acesso de veículos, ampliando as possibilidades de estacionamento, expansão construtiva ou novas implantações.

No total, o imóvel soma 1.800 m² de área de terreno e aproximadamente 505,5 m² de área construída, configurando uma excelente oportunidade para investidores ou empresas que buscam um ativo versátil, bem localizado, com renda imediata e grande potencial de valorização.

Quer mais informações?

Fale com um especialista para te ajudar. Sem compromisso.

Quero falar com um especialista

Bem estar e comodidade

Ambientes Integrados
Armário Embutido
Armário de Cozinha
Box Blindex
Churrasqueira na Varanda
Cozinha Grande
Escritório
Home Office
Janela Panorâmica
Lavabo
Pé Direito Duplo
Sacada
Sala Grande
Varanda
Vista Panorâmica

Segurança

Cerca
Muros e Grades
Portão Eletrônico

Lazer e natureza

Churrasqueira
Espaço Verde/Parque

Infraestrutura

Depósito
Garagem
Gerador
Vestiário
Área Técnica

Acabamento

Cerâmica
Cimento Queimado
Isabel Chiarelli
Corretor de Imóveis CRECI: 265080F

Gostou deste galpão?

Conheça a região do bairro Jardim Sao Marcos

Gostou deste galpão?

Preencha o formulário abaixo e tire todas suas dúvidas sem compromisso.

WhatsApp
x

Olá! Preencha os campos abaixo para iniciar a conversa no WhatsApp